

Waxus Imobiliare vă propune spre vânzare apartamente moderne cu 1 cameră,
amplasate într-un imobil nou cu regim de înălțime S+P+6E, aflat în construcție și cu termen de finalizare la sfârșitul anului 2025.
Emiterea CF-urilor este estimată pentru luna februarie 2026. Proiectul este situat pe strada Tineretului din Florești, într-o zonă bine conectată la facilități esențiale.
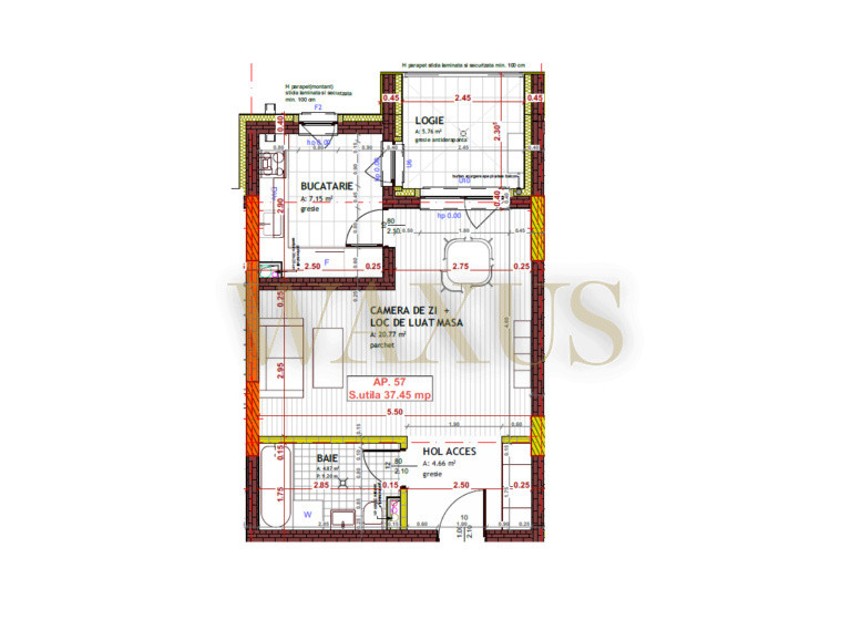
Compartimentare apartamente 1 cameră:
hol, dormitor, bucătărie, baie și balcon.
Detalii ofertă:
-apartamente disponibile la etaje intermediare
-suprafețe începând de la 37,5 mp
-predare la stadiul de semifinisat
-parcări disponibile contra cost
Avantaje zonă:
-la doar 5 minute de Profi
-aproape de sală de fitness
-stație de transport în comun în imediata apropiere
Parcări disponibile:
-loc de parcare exterior: 4.000 EUR (TVA inclus)
-loc de parcare subteran: 7.000 EUR (TVA inclus)
Pentru mai multe detalii sau pentru programarea unei vizionări, nu ezitați să ne contactați.
ID extern: P122052