





WAXUSIMOBILIARE vă propune spre vânzare apartamente cu 1, 2 și 3 camere,
situate într-un imobil nou cu regim de înălțime S+P+6E, aflat în construcție, cu termen de finalizare la sfârșitul anului 2025. CF-urile sunt estimate pentru luna februarie 2026.
Proiectul este localizat în comuna Florești, pe strada Tineretului, într-o zonă bine conectată la facilități esențiale.
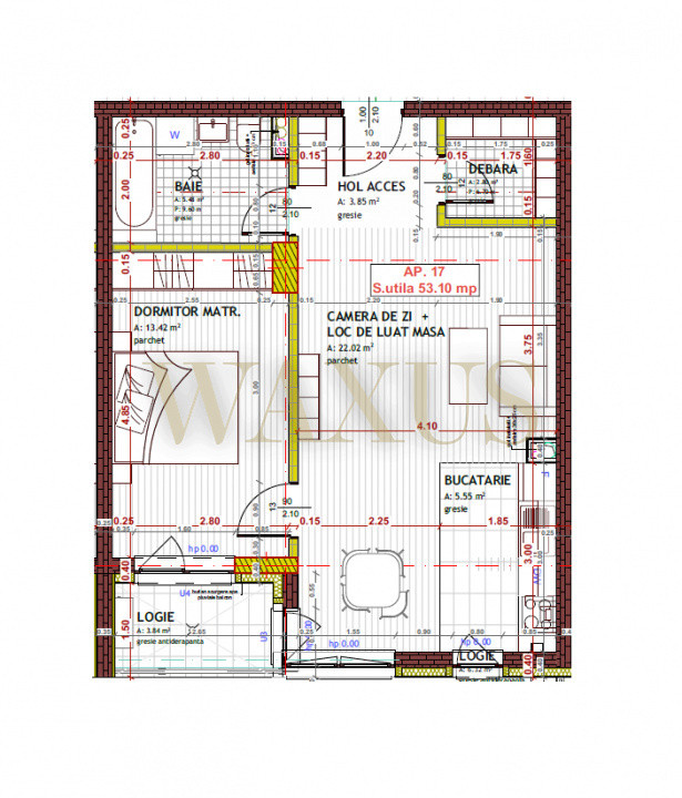
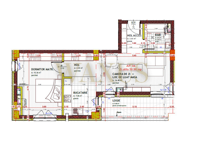
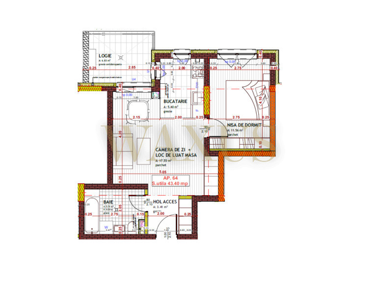
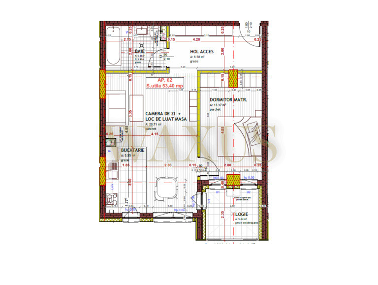
Detalii ofertă
– Apartamente disponibile la etaje intermediare
– Suprafațe cuprinse între 37,5 mp și 78 mp
– Compartimentări eficiente, potrivite pentru diferite nevoi locative
Avantaje zonă
– La 5 minute de Profi
– La 5 minute de sală de fitness
– Stație de mijloace de transport în comun în apropiere
Predare
– Apartamentele se predau la stadiul de semifinisat
Parcări disponibile contra cost
– Loc de parcare exterior: 4.000 EUR (TVA inclus)
– Loc de parcare subteran: 7.000 EUR (TVA inclus)
Pozele din anunț sunt doar randări, pentru ilustrare.
Pentru mai multe detalii sau programarea unei vizionări, nu ezitați să ne contactați.
ID extern: P122088