



Waxus Imobiliare vă propune spre vânzare apartamente moderne cu 3 camere,
situate într-un imobil nou cu regim de înălțime S+P+6E, aflat în construcție, cu termen de finalizare la sfârșitul anului 2025. CF-urile sunt estimate pentru luna februarie 2026.
Proiectul este localizat în comuna Florești, pe strada Tineretului, într-o zonă bine conectată la facilități esențiale.
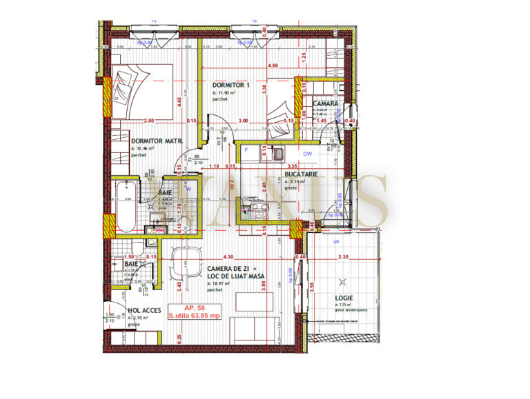
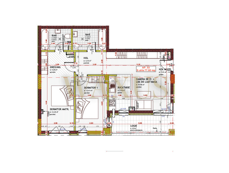
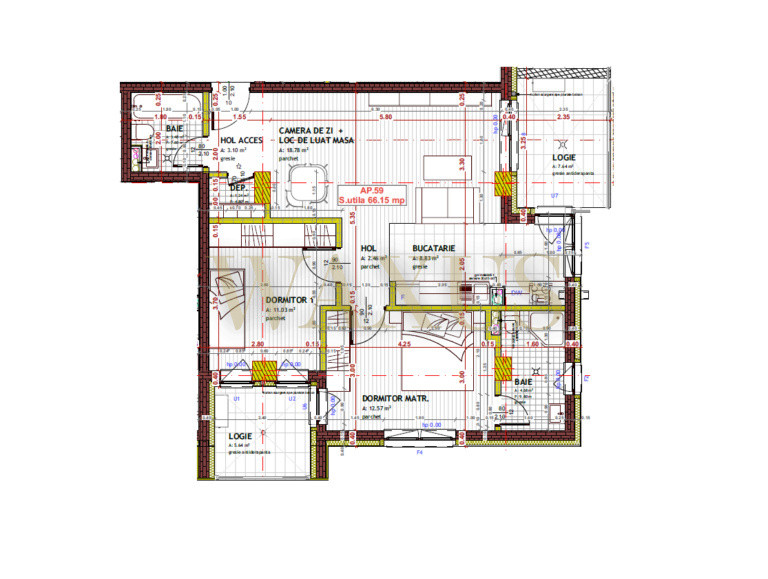
Compartimentare apartamente 3 camere:
Hol, living cu bucătărie open-space, 2 dormitoare, baie și balcon.
Detalii ofertă:
Apartamente disponibile la etaje intermediare
Suprafețe de până la 78 mp
Predare la stadiul de semifinisat
Parcări disponibile contra cost
Avantaje zonă:
La 5 minute de Profi
La 5 minute de sală de fitness
Stație de mijloace de transport în comun în apropiere
Parcări disponibile contra cost:
Loc de parcare exterior: 4.000 EUR (TVA inclus)
Loc de parcare subteran: 7.000 EUR (TVA inclus)
Pentru mai multe detalii sau pentru programarea unei vizionări, ne puteți contacta.
ID extern: P122091