
















Waxus Imobiliare vă propune spre vânzare case individuale, situate în Chinteni, într-o zonă liniștită și aerisită,
ideale pentru familii care își doresc confort și spațiu generos, cu termen de finalizare în aprilie 2026.
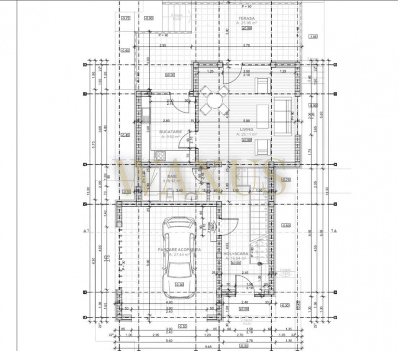
Fiecare locuință dispune de o suprafață utilă de 150 mp, la care se adaugă 50 mp de terase, fiind amplasată pe un teren de 700 mp (inclusiv amprenta casei).
Compartimentarea include:
La Parter: living spațios, bucătărie separată, garaj cu posibilitate de transformare în cameră, baie
La etaj dormitor matrimonial cu dressing și baie proprie, două dormitoare suplimentare și o baie comună.
Detalii tehnice: încălzire în pardoseală, geamuri tripan, acoperiș cu țiglă ceramică.
La pretul afisat in anunt se adauga TVA.
Pentru informații suplimentare sau pentru programarea unei vizionări, vă invităm să ne contactați.
ID extern: P144601