






Vilă modernă P+1 – prima din ansamblu de 3 case Waxus Imobiliare vă propune spre vânzare vilă nouă, situată într-un ansamblu rezidențial exclusivist, format din doar 3 case identice, oferind intimitate, confort și calitate superioară.
📐 Caracteristici principale:
Suprafață utilă: 131 mp
Suprafață teren: 450 mp
Regim de înălțime: Parter + Etaj
Stadiu: Semifinisat
Construcție nouă
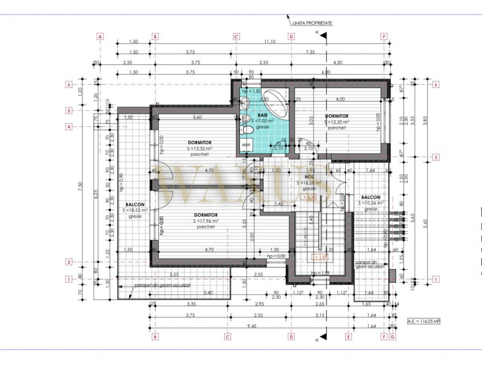
🏠 Compartimentare eficientă:
Parter:
Living generos cu bucătărie open-space
Birou (ideal work from home / cameră oaspeți)
Baie
Etaj:
3 dormitoare spațioase
Baie
📅 Predare:
Februarie 2026
✅ Avantaje:
Prima casă din ansamblu – poziție excelentă
Compartimentare practică, ideală pentru familie
Posibilitate de personalizare a finisajelor
Zonă liniștită, cu acces facil
Investiție sigură într-o construcție nouă
📞 Pentru detalii suplimentare și programarea unei vizionări, nu ezitați să ne contactați!
Această proprietate este ideală atât pentru locuire, cât și pentru investiție
ID :P146774