



WAXUSIMOBILIARE va propune spre vanzare o casa individuala in localitate Luna de Sus.
Constructia este in faza finala de constructie, cu termen de finalizare in Ianuarie 2026 si CF la sfarsitul lunii Februarie
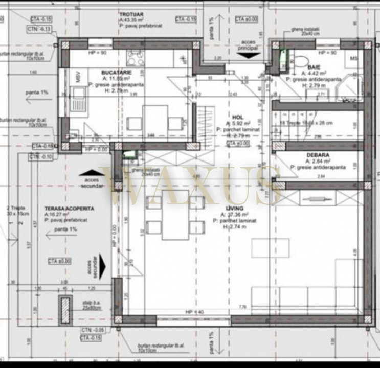
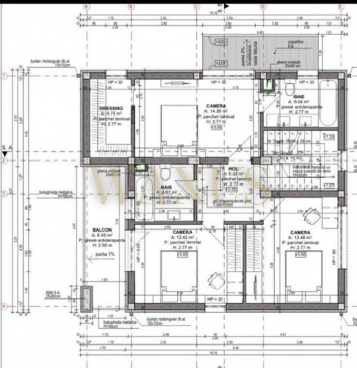
Suprafata utila fiind de 120mp, amplasate pe 2 etaje, respectiv un P+1 ET;
Compartimentarea este urmatoarea:
-Parter compus din 1 hol generos, 1 bucatarie decomandata, 1 baie cu geam, 1 debara, 1 living luminos cu iesire pe o terasa acoperita de 17mp;
-Etaj compus din 1 hol, 2 dormitoare, 1 baie care deserveste cele 2 dormitoare, 1 dormitor matrimonial cu baie I dressing si balcon propriu.
Terenul este unu generos, 400mp total, amprenta casei este de 70mp, 330mp ar fi terenul liber.
Zona este o zona bine conectata la punctele de interes.
Pentru mai multe detalii sau programarea unei vizionari nu ezitati sa ne contactati!
IDextern: P144588