










WAXUSIMOBILIARE vă propune spre vânzare o casă individuală modernă, situată într-o zonă liniștită a comunei Gilău, ideală pentru cei care își doresc confort, intimitate și eficiență energetică.
Imobilul este construit pe un singur nivel, are o suprafață utilă de 121,7 mp și este amplasat pe un teren generos de 830 mp. Casa a fost finalizată în anul 2024 și respectă standardele NZEB (Nearly Zero Energy Building), oferind costuri reduse de întreținere și un nivel ridicat de confort.
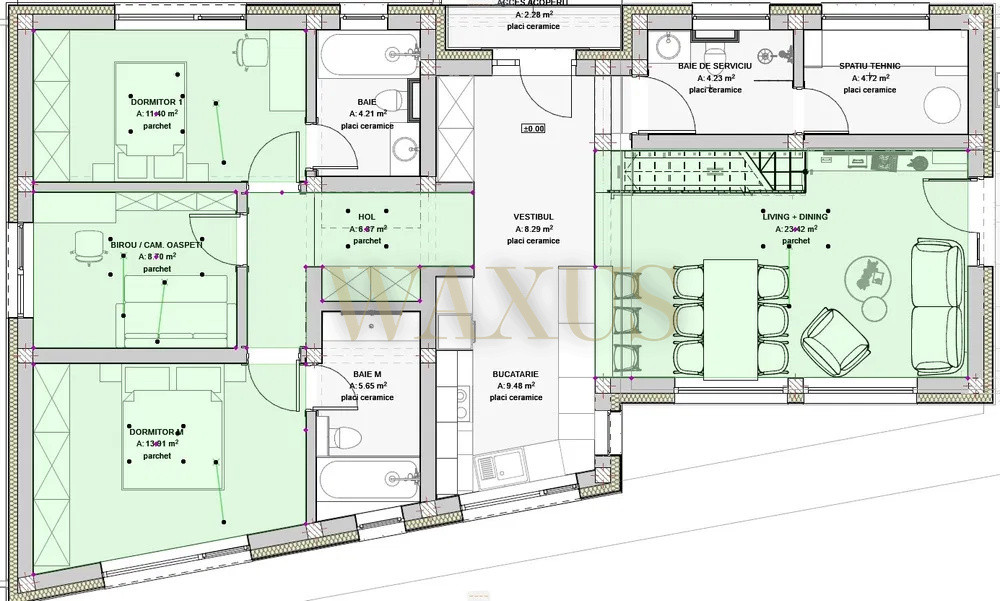
Compartimentare: Living + bucătărie open-space, Hol, 3 dormitoare, 3 băi, Terasă
Casă individuală, pe un singur nivel
- teren generos, ideal pentru amenajări exterioare
- Clasă energetică NZEB
- Construcție nouă, finalizată în 2024
- Zonă liniștită, cu acces facil către puncte de interes din Gilău
Imobilul se pretează atât pentru locuință proprie, cât și pentru investiție, fiind o alegere excelentă pentru familii.
Pentru mai multe informații sau pentru programarea unei vizionări, nu ezitați să ne contactați.
ID extern: P147369