



Waxus Imobiliare vă propune spre vânzare o casă unifamilială nouă, situată la intrarea în Chinteni.
parte dintr-un ansamblu de 7 locuințe moderne cu front la strada principală.
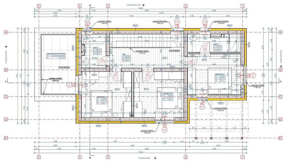
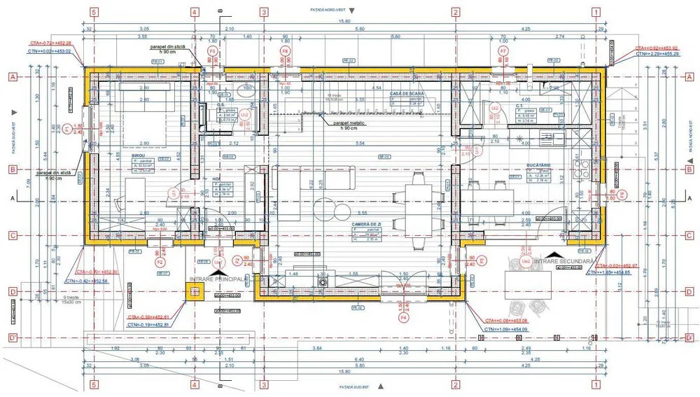
Proprietatea are un teren de 514 mp și o suprafață utilă de 127,7 mp + terasă de 11,81 mp, dispusă pe regim de înălțime P+E.
Compartimentare:
-Parter – living spațios, bucătărie separată, birou, baie, cameră tehnică, hol;
-Etaj – 3 dormitoare (unul matrimonial cu baie proprie), baie comună și hol.
Casa se predă la stadiul de semifinisat, cu toate utilitățile la poziție și instalații trase.
Dotată cu panouri fotovoltaice de 5kW, panou solar pentru apă caldă, încălzire în pardoseală, centrală Buderus, tâmplărie Rehau tripan, sistem de irigații automatizat și curte complet amenajată.
Ideală pentru o familie care își dorește confort, eficiență energetică și un cadru modern.
Pentru mai multe detalii sau o vizionare, vă invităm să ne contactați.
IDextern: P142454