






WAXUS IMOBILIARE vă propune spre vânzare o casă individuală, situată în zona Sopor din Cluj-Napoca, amplasată pe un teren generos de 800 mp.
Imobilul are o suprafață utilă de 152 mp și beneficiază de o poziționare excelentă, la aproximativ 10 minute de Iulius Mall Cluj-Napoca și la 7 minute de hub-ul educațional și complexul de natație din cartierul Borhanci.
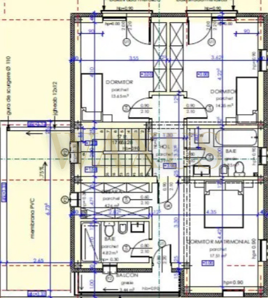
Compartimentarea este practică și bine organizată.
La parter regăsim bucătărie de 12,10 mp, cameră de zi de 29,93 mp, cameră tehnică de 4,32 mp, baie de 3,97 mp, cămară de 2,41 mp, casa scării de 2,80 mp, hol de 5,27 mp, birou de 10,08 mp, copertină auto de 15,90 mp și terasă neacoperită de 23,40 mp, suprafața totală a parterului fiind de 84,77 mp.
Etajul este compus din hol de 4,39 mp, dormitor matrimonial de 17,51 mp, baie de 4,82 mp, debara de 4,26 mp, două dormitoare de 14,35 mp și 13,45 mp, încă o baie de 5,85 mp și balcon de 3,44 mp, suprafața totală fiind de 64,83 mp.
Datorită amplasării, suprafeței generoase și compartimentării eficiente, proprietatea este ideală pentru o familie care își dorește confort și acces rapid către punctele de interes ale orașului.
Pentru mai multe detalii sau programarea unei vizionări, vă stăm la dispoziție.
ID extern: P155002