






WAXUS IMOBILIARE vă propune spre vânzare o proprietate situată în Popești Deal, într-o zonă aerisită, cu vedere deschisă.
Casa are o suprafață utilă de 172 mp, completată de aproximativ 90 mp de terase, și este amplasată pe un teren de 620 mp, cu posibilitatea extinderii la 1240 mp prin alipirea unei parcele suplimentare.
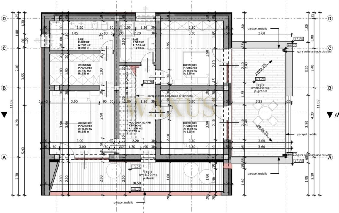
Compartimentarea este modernă și eficientă:
La parter se regăsesc livingul cu bucătărie open-space, terasă acoperită de 50 mp, baie, birou și cameră tehnică.
La etaj sunt 3 dormitoare, 2 băi, precum și terasă individuală pentru dormitorul matrimonial și terasă comună pentru celelalte camere.
Construcția beneficiază de izolație exterioară ventilată cu vată bazaltică de 15 cm, încălzire în pardoseală pe toată suprafața și centrală termică pe gaz, cu posibilitatea montării unei pompe de căldură.
Imobilul se predă la stadiul de semifinisat, existând posibilitatea de personalizare în funcție de stadiul execuției.
Termenul de finalizare este estimat pentru iunie – iulie 2026.
O alegere ideală pentru cei care caută confort, priveliște și o proprietate modernă aproape de oraș.
ID EXTERN: P155059