









Waxus va ofera spre vanzare o casa premium tip duplex, situata în capătul străzii Donath, într-o zonă liniștita si cu panorama deosebita.
Descriere:
D+P+E+ER
Imobil construit din caramida cu izolație din polistiren de 15 cm
Tâmplărie tripan Veka 82, Solbanc termic, Bagheta caldă Superspacer.
Garanție extinsă 15 ani pe profil
Înalțătoare termice de șapă și pervaz
Încălzire prin pardoseală pe țeavă Purmo 17 , grup de pompare pe fiecare nivel .
Instalația sanitară realizata din țeava Henco de 0,4.
Distribuitoare pe fiecare nivel pe instalația sanitară.
Scări exterioare si pervaze placate cu granit .
Balustrazi terase sticlă securizată de 16 cm
Compartimentare:
DEMISOL
- garaj 2 locuri 42 mp
-spațiu tehnic 6,2 mp
-hol 7,1 mp
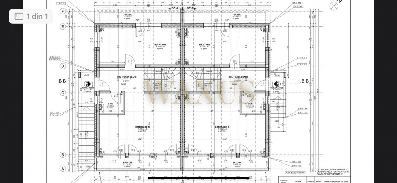
PARTER
-living 30,21 mp
-bucătărie 20,92 mp
-baie 3,3 mp ,
-balcon 8 mp
-hol 14 mp
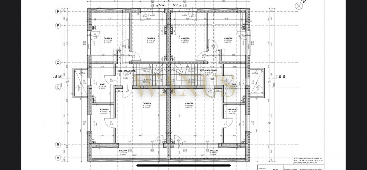
ETAJ
-dormitor matrimonial 23,26 mp
-camera 14 mp
-camera 13,75 mp
-baie 7 mp
-dressing 7 mp
-balcon 8 mp
-hol 7,1 mp
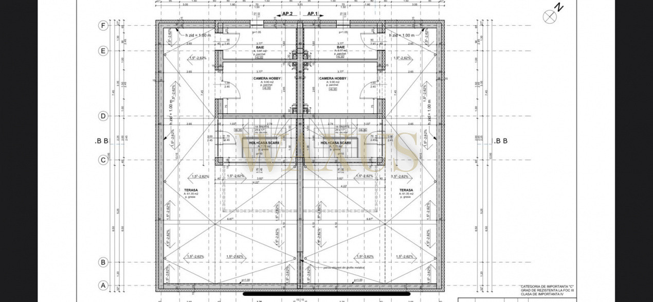
EATAJ RETRAS
-camera 10 mp
-baie 6 mp
-terasă circulabila cu pardoseala flotanta de 61,35 mp
S utilă totală -223 mp + terasa 61,35 mp +16 mp balcoane.
Pentru informatii suplimentare sau programarea unei vizionari, va rugam sa ne contactati. ID P148620